
Mixed-use Building San Juan del Río High School
The Mixed-Use Building in San Juan del Río High School was designed to accomodate the dynamic life of high-school students. During the research phase of the project we discovered three key elements that would influence the design decisions:
- The existing cafeteria was a self-built dark construction located far away from where student activities took place. It did not belong to the school and its owner lent his furniture so students could work before, in-between and after clases.
- There are no benches or places for students to sit on outside the classrooms.
- Green areas, although very well taken care of, are completely off limits.
After analyzing these elements, we decided to design a building that included a cafeteria at its core, offered spaces to sit and work outdoors and that was not off limits so it could be taken over by students.

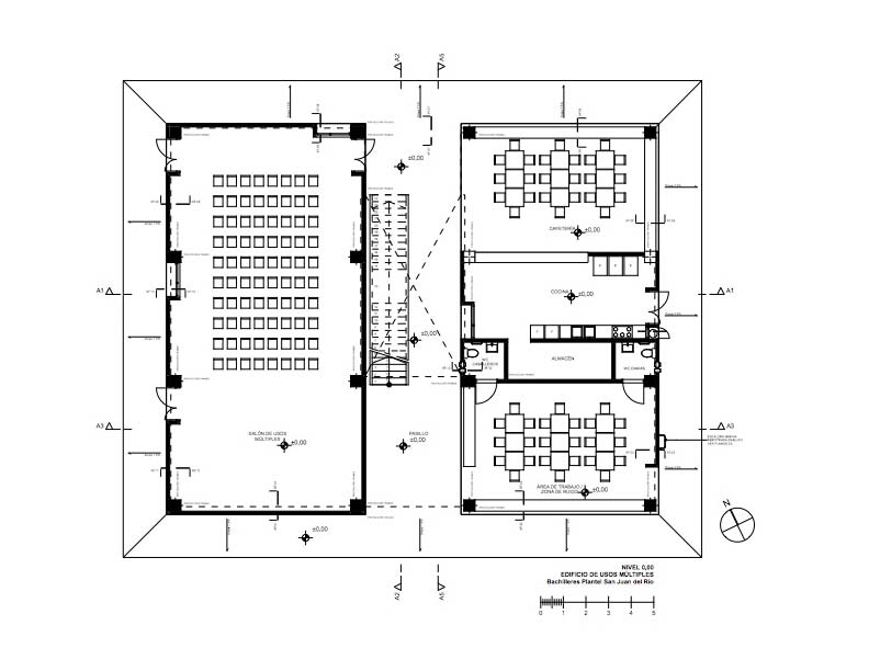
Its volume, while simple, is a two-level structure to which elements have been subtracted to generate interesting open spaces within it. The ground floor is comprised by two volumes separated by a corridor which leads either towards the sports field or to a green area in the other direction. In this sense, the building has no back or front, its permeability allows for movement and the experience of being outdoors, even within the building. The top of the corridor is open, breaking even more the volume to allow the entrance of sunlight to the ground floor, and indoor spaces.
The first volume on the ground floor of the building houses a room where many activities can take place, but it is mostly closed and the contact with the outside is possible only through windows and doors. On the other hand, the second volume accommodates three spaces: a café, a kitchen and a working area. This areas are very open, with the exception of the kitchen. The café and the working area are not enclosed by walls, but rather by concrete benches which are part of the structure of the building where students to sit on and work even when classrooms are closed, while protected from the sun or rain. The working area is closer to the vegetation, to allow concentration, whereas the café is in direct contact with the sports field and at the heart of the school.

In the corridor lays a self-supporting stair which connects to the upper floor where the library and the computer room are located. Both spaces face the center patio, thus allowing natural illumination and cross ventilation to all spaces.
Because the budget was very low we used materials that need little maintenance. Even though the building is very raw, students have taken over it and have filled it up with life.
Edificio de Usos Múltiples de la Universidad Autónoma de Querétaro

En el año 2012 la nueva administración de la Universidad Autónoma de Querétaro formó un equipo de Arquitectos e Ingenieros dentro de la Dirección de Obras para diseñar y construir la nueva infraestructura de la universidad. Desde entonces se han diseñado más de 60 proyectos, de los cuales 30 se han construido o están en construcción. El objetivo principal de esta iniciativa es diseñar edificios dignos dedicados a la educación, que fortalezcan las necesidades de los distintos campus y planteles de bachilleres, incluyendo aquellos fuera de la zona metropolitana de la ciudad de Querétaro y cuidar los fondos de carácter público con los que se construyen los edificios. Además, con este proyecto se abrió un espacio práctico para estudiantes de arquitectura e ingeniería.
Es dentro de este ambiente en el que nace el Edificio de Usos Múltiples de la Escuela de Bachilleres Plantel San Juan del Río. Durante el proceso de investigación encontramos tres aspectos que repercutirían en las decisiones del diseño:
- La cafetería estaba ubicada en una zona alejada de donde se llevan a cabo las actividades de los estudiantes, era una estructura auto-construida que no pertenecía a la escuela. El dueño prestaba sus mesas para que los alumnos pudieran estar antes, entre y después de clases.
- No había bancas fuera de los salones para sentarse al aire libre.
- El acceso a las áreas verdes está prohibido.





Con esto en mente, decidimos diseñar un edificio con una cafetería digna que ofreciera espacios para estar y trabajar al aire libre y que no tuviera acceso restringido para que los estudiantes pudieran apoderarse de él.
El edificio fue diseñado para acomodarse a la vida dinámica de los estudiantes de bachilleres. Su volumen, aunque sencillo, es una estructura de dos niveles a la que se le han sustraído elementos para generar espacios interiores abiertos e interesantes.

La planta baja está conformada por dos volúmenes entre los cuales se encuentra un pasillo amplio el cual permite que los alumnos se dirijan hacia la cancha de deportes o hacia una área llena de vegetación. En este sentido, el edificio no tienen un delante ni un detrás, su permeabilidad permite el movimiento y la experiencia de estar al aire libre dentro de un edificio. La parte superior del pasillo está descubierta, rompiendo el volumen para permitir el paso de los rayos del sol al nivel de abajo.
El primer volumen de la planta baja es un espacio libre dedicado a distintos usos, está cerrado en su totalidad, siendo ventanas y puertas el único medio para tener contacto con el exterior. En su contraparte, el segundo volumen alberga tres lugares: una cafetería, una cocina y una zona de trabajo. Con excepción de la cocina, estos espacios no están rodeadas de muros, sino de unas bancas de concreto que conforman la estructura del edificio sobre las cuales cualquiera puede sentarse. Estos espacios ofrecen áreas de trabajo a los alumnos entre o después de clases, protegidos del sol o de la lluvia. Además, esta área está más cercana a la vegetación para fomentar la concentración, mientras que la cafetería está orientada hacia la cancha de deportes.
Dentro del pasillo se encuentra una escalera auto-portante que articula la planta baja con la planta alta. En la planta alta se encuentra la biblioteca y el centro de cómputo. La biblioteca así como del centro de cómputo están orientados hacia el patio que se forma al interior del volumen, permitiendo la ventilación cruzada y la iluminación natural al interior del edificio.
Los alumnos se han apropiado de este edificio y lo han llenado de vida.
Multifunktionales Gebäude der Schule in San Juan del Río
Diese multifunktionale Gebäude der Schule in San Juan del Río ist entworfen worden, um das dynamischen Leben der Studierenden zu unterbringen. Während der Untersuchungsphase des Projektes haben drei wichtige Elemente der Entwurfs beeinflusst:
- Der existierende Cafeteria war eine selbst gebaute dunkle Gebäude wo die Studierende die meisten Zeit verbracht haben. Die hat nicht zur Schule gehört, allerdings, der Besitzer hat seine Möbel ausgeliehen, damit die Schüler ihre aufgaben bearbeiten könnten. Hier haben die Schüler die meisten Zeit verbracht.
- Es gab kaum Sitzbänke um draussen zu sitzen zwischen der Unterricht Zeit.
- Grüne Lagen sind komplett für die Studierende gesperrt.

Nach der Analyse diese Faktoren, haben wir entschieden ein Gebäude zu entwerfen, die im Herz eine Cafeteria haben würde, wo die Räume in Erdgeschoss nicht komplett geschlossen sein würden und die Räumlichkeiten mit Kontakt zur äussere Umgebung anbieten, ohne Verbot, damit die Studierende diese Räume übernehmen und dort sich unterhalten, arbeiten und einfach sitzen können.
Das Volum ist eine simple zweigeschossige Struktur zu dem Elemente subtrahiert worden sind, um interessante offen Räumlichkeiten zu generieren. Das Erdgeschoss ist durch zwei Volumen umgefasst, die durch eine Flur getrennt sind, die zum andere Seite des Geländes führt. Also von Fussballplatz zum Garten und viceversa. In diesem Sinne, hat das Gabäude keine Rückseite. Die Durchlässigkeit der Fassade erlaubt frei Bewegung und das Erleben draussen zu sein. Der Flür ist nur halbgeschlossen, dies zerbricht das Volum weiter, um Sonnenlicht im Erdgeschoss und Innenräume rein zu lassen.

Das erste Volum in Erdgeschoss des Gebäudes ist eine multifunktionales Raum die zum Aussen sehr geschlossen ist, der Kontakt zu Draussen gelingt nur durch Fenster. Anderseits, der zweite Volum ist von drei Räume verfasst: Cafeteria, die Küche und Arbeitsraum. Die Küche ist hauptsächlich geschlossen, aber die Cafeteria und der Arbeitsraum sind nicht mit Wände umgeschlossen, sondern bei Betonbänke die Teil der Struktur formen. Auf diese Bänke können die Studierende bleiben und arbeiten während die Unterrichtsräume unzugänglich sind. Diese Raum ist direkt im Kontakt zu den Garten, die Cafeteria zu Fussballfeld.
Im Flur liegt ein selbstragende Treppe die der Erd- und Erstgeschoss erschliesst, wo sich die Bibliothek und Computerraum sich befinden. Beide Räume sich sind zum Flur orientiert um natürlich sich beleuchten und belüften lassen.
Wegen des Geringes Budget, sind Materialien sichtbar und brauchen wenig Wartung. Aus diesem Grund wirkt diese Architektur sehr Roh, bekommt aber leben als die Studenten es besetzen.
