
In 2008 Mexico introduced court of law to its judicial system. In order to prepare students for this new practice, the Universidad Autónoma de Querétaro built a series of courtrooms in different campus. Our office participated in the design of the courtroom in Jalpan de Serra and San Juan del Río. Both buildings are 300 m2 (3230 ft2) where the courtroom is surrounded by the judges office and working spaces. With only a budget of USD$105,332.00, we maintained a simple and compact structure, and chose to use textured red brick left in its raw state, which added color and texture to the façade, reducing costs for maintenance. Both buildings have a very permeable envelope which allows for natural ventilation. This is specially important in Jalpan, because of its warm and humid temperature.








Gerichtssaal in Jalpan de Serra






Im Jahr 2008 hat das Justizsystem Mexikos die Hauptverhandlung als Teil des Hauptverfahrens eingeführt. Damit Studenten sich für diese Änderung vorbereiten könnten, hat die Universidad Autónoma de Querétaro in verschiedenen Campus Gerichtssälen gebaut. Unter diesem findet sich der Gerichtssaal der Gebirgsregion Jalpan de Serra.
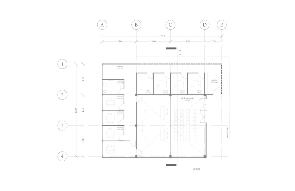
Das Gebäude, nur 300 m2 groß, bringt eine Gerichtssaal umgeben von Arbeitsräume, eine Fachbibliothek und das Richterzimmer unter. Aufgrund des geringen Budget, ist die Struktur einfach, das Volumen kompakt und die Materialien in ihrem natürlichen Zustand.

Die Gebäudehülle besteht aus Lochziegeln, welche helfen das Raumklima zu verbessern. Durch die spezielle Platzierung der Ziegelsteine entsteht eine sehr durchlässige Fassade, die natürliches Belüftung und Belichtung ermöglichen.
Das multifunktionale Gebäude und der Gerichtssaal werden durch eine Esplanade artikuliert. Beide rote Gebäude kontrastieren mit die grüne Umgebung der Sierra Gorda.
